Zpět na výběr
K-009
FRANTIŠKOV - stylová horská chalupa
Lokalita: Krkonoše
Typ: horská chalupa
Pobyt: Celoročně
Kapacita: 14
Ložnice: 5
Stylová horská chalupa v Krkonoších. Lyžování. Další informace
Cena za pronájem:
28.800 Kčtýden v létě, 32.800 Kč/týden v zimě
DŮLEŽITÉ !!:
V ZIMĚ ( leden, únor, březen ) POBYTY NEDĚLE - NEDĚLE !!!!!
Umístění:
1,5 km Rokytnice nad Jizerou, v horské stráni nedaleko obce Františkov
Parkování:
Na vlastním parkovišti, celoročně přístupné
Vybavení venkovní:
Na neoploceném pozemku venkovní krb s grilem, zahradní nábytek, trampolína, pískoviště, nafukovací bazén 3,2x2x0,6m
Vybavení interiéru:
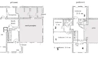
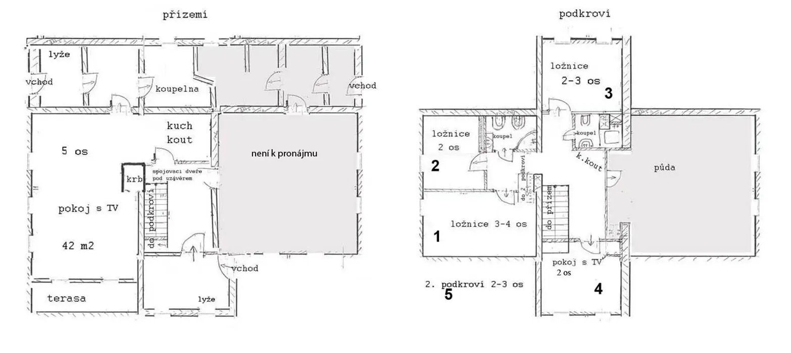
Objekt má v přízemí 1 velký pokoj s krbem, v podkroví až 5 ložnic, 3x nadstandartní příslušenství s WC, 2x plně zařízený kuchyňský kout, 2 vchody, wifi, max 14 osob včetně dětí.
A) Přízemí (studio): společenská místnost (4 postele), posezení u krbu 2x velký rozkládací jídelní stůl, BTV, CD-přehrávač, plně vybavený kuchyňský kout - el. 4vařič, lednice s mrazákem, myčka nádobí, elektrická a mikrovlnná trouba, varná konvice, překapávač na kávu, nádobí na počet osob. Koupelna s vanou + bidet + WC, samostatný vchod, předsíň, lyžárna, malá terasa.
B) Podkroví: 4-5 ložnic: 2x2 lůž., 1x2-3 lůž., 1x3-4 lůž., ve 2. podkroví (špice chalupy)- spaní pro 2-4 osoby, 2x příslušenství (sprcha + WC + bidet), malý kuchyňský kout, samostatný vchod, předsíň, lyžárna. Na vyžádání 1 ložnici (2 os) je možno upravit na další malou spol místnost (gauč, jídelní stůl, TV, bez spaní).
Obě části jsou propojeny vnitřními spojovacími dveřmi.
Vytápění el. přímotopy, v příslušenstvích vytápěné podlahy
Internet:
WiFi
Povlečení:
ANO - za poplatek 80 Kč/sada nebo vlastní
Doplatky za energie:
NE
Bazén:
ANO - nafukovací bazén 3,2x2x0,6m
Krb:
ANO - v obývacím pokoji
Kauce:
2.500 Kč
Domácí zvíře:
ANO - poplatek 300 Kč
Obchod:
1,5 km
Restaurace:
200 m
Koupání:
7 km
Rybolov:
7 km
Lyžování:
150 m
V okolí:
Pěší i cykloturistiika, les 200 m, projížďky na koních 4 km, zastávka Krkonošského cyklobusu (Harrachov - Pomezní boudy) 200 m od chalupy, pramen Labe 6 km, motokárová dráha 3 km, lanové centrum 15 km, tenisové kurty + kuželky + bowling + sauna + posilovna v Rokytnici, Krkonošská muzea ve Vysokém nebo Pasekách 10 km, Jilemnici 15 km, safari Dvůr Králové nad Labem 45 km, aquapark Špindlerův Mlýn 45 km nebo Liberec 60 km, krasové jeskyně Bozkov 20 km, zámky Sychrov nebo Hrubý Rohozec 45 km. Zima: lyžování pro začátečníky i pokročilé - vlek 150 m, ski areál Lysá hora 2,5 km; ski-bus 1,5 km sjezdem od chalupy, zpět 6 km sjezd k chalupě, noční lyžování 400 m, běžecké tratě, půjčovna lyží a snowboardů















































